En Venta
USD209.000
Departamento
Departamento 3 ambientes contra frente a estrenar en Parque Centenario, 7mo piso
Código: 195975

Río de Janeiro 643, C1405 Cdad. Autónoma de Buenos Aires, Argentina, Almagro, Capital Federal, Argentina.

Compartir esta Propiedad

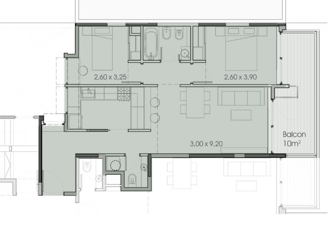
Descripción de la Propiedad

Hermosa unidad de 3 ambientes a estrenar – Almagro / Parque Centenario

Proyecto moderno, sustentable y diseñado para maximizar el confort, la funcionalidad y la luz natural en cada ambiente. Ubicado en una de las zonas más buscadas de Almagro, a pasos de Parque Centenario.

Cuenta con cocina, amplio living-comedor, un dormitorio matrimonial, 2do dormitorio y baño completo con bañera, y un balcón de 10m2 corrido que conecta el dormitorio con el living, generando una excelente continuidad visual y mayor luminosidad.
Características principales
- Cocina integrada o independiente (según tipología).
- Living-comedor amplio y luminoso.
- Dormitorio principal y 2do dormitorio
- Balcón corrido con barandas de vidrio.
- Ventanales de piso a techo con parasoles que maximizan la luz natural.
- Preinstalación para equipos frío/calor tipo Split.
- Espacio bicicletero por unidad.

El edificio
- Planta baja con accesos, cocheras y dos locales comerciales.
- Departamentos de 1, 2 y 3 ambientes.
- Terraza con amenities y amplios espacios verdes.
- Edificio 100% eléctrico con enfoque sustentable.
- Cada unidad cuenta con espacio bicicletero.
- Balcones diseñados con espacio para equipos de aire acondicionado y guardado.
- Preinstalación para equipos frío/calor tipo Split.

La unidad
- Cocinas integradas o independientes.
- Balcones amplios y corridos con barandas de vidrio.
- Toilette y vestidores según tipología.
- Ventanales de piso a techo con parasoles que maximizan la luz natural.
Terminaciones interiores
- Cielorrasos en hormigón visto.
- Pisos porcelanato símil madera.
- Placares en melamina minimalista.
- Aberturas de piso a techo con DVH.
- Porcelanatos modernos en pisos y revestimientos.
- Artefactos y griferías de alta calidad.
- Mesadas en granito o similar.
- Puertas interiores en melamina de alta resistencia.
Espacios exteriores
- Decks WPC símil madera.
- Barandas de aluminio Aluar A40 con vidrio laminado 8+8.
- Perfilería de aluminio pesado color negro.
- Puertas de acceso cortafuego.

Amenities
- Piscina
- Solarium
- SUM con parrilla y terraza
- Sector fogonero
- Sector de juegos infantiles
- Terraza verde con duchas
- Sector “picnic” con parrilla
- Espacio de coworking

Subsuelo
- Estacionamientos con cielorrasos de hormigón visto
- Iluminación premium

Instalaciones sanitarias
- Agua caliente individual por termotanques eléctricos de alta recuperación
- Cañerías en termofusión

Hall de ingreso
- Materiales nobles: madera y acero
- Hormigón visto y cielorrasos suspendidos

MARIA LAURA WULFF - WULFF SERVICIOS INMOBILIARIOS MATRICULA CUCICBA9286

Mas detalles
  • Pileta
  • Garage
  • Cochera subterránea
  • Balcon
  • Parrilla
  • Portones eléctricos
  • Apto estudiantes
  • Luminoso
  • Cochera
  • Agua Corriente
  • Cloacas
  • Electricidad
  • Red Gas Natural
  • Planos aprobados
  • Entrada para Auto
  • Cocina Amueblada
  • Medidor Eléctrico Individual
  • Garita de seguridad
  • Galería techada
  • Estacionamiento autos techado
  • Ascensor
  • Co-Working

Vista 360

Ubicación